燃燒器作為一種自動化程度較高的機電一體化設備, 從其實現的功能可分為五大系統: 送風系統、 點火系統、 監測系統、 燃料系統、 電控系統。
1、送風系統
送風系統的功能在于向燃燒室里送入一定風速和風量的空氣, 其主要部件有: 殼體、 風機馬達、 風機葉輪、 風槍火管、 風門控制器、 風門檔板、擴散盤。
殼體:是燃燒器各部件的安裝支架和新鮮空氣進風通道的主要組成部分。從外形來看可以分為箱式和槍式兩種,箱式燃燒器多數有一個注塑材料的外罩,且功率一般較小,大功率燃燒器多數采用分體式殼體,一般為槍式。殼體的組成材料一般為高強度輕質合金鑄件。
風機馬達:主要為風機葉輪和高壓油泵的運轉提供動力,也有一些燃燒器采用單獨電機提供油泵動力。某些小功率燃燒器采用單相電機,功率相對較小,大部分燃燒器采用三相電機,電機只有按照確定的方向旋轉才能使燃燒器正常工作。
風機葉輪:通過高速旋轉產生足夠的風壓以克服爐膛阻力和煙囪阻力,并向燃燒室吹入足夠的空氣以滿足燃燒的需要。它由裝有一定傾斜角度的葉片的圓柱狀輪子組成,其組成材料一般為高強度輕質合金鋼,也有注塑成形的產品,所有合格的風機葉輪均具有良好的動平衡性能。
風槍火管:起到引導氣流和穩定風壓的作用,也是進風通道的組成部分,一般有一個外套式法蘭與爐口聯接。 其組成材料一般為高強度和耐高溫的合金鋼。
風門控制器:是一種驅動裝置,通過機械連桿控制風門檔板的轉動。
一般有液壓驅動控制器和伺服馬達驅動控制器兩種,前者工作穩定,不易產生故障,后者控制精確,風量變化平滑。
風門檔板:主要作用是調節進風通道的大小以控制進風量的大小。 其組成材料有注塑和合金兩種, 注塑檔板一般為單片形式, 合金檔板有單片、雙片、三片等多種組合形式。
擴散盤:其特殊的結構能夠產生旋轉氣流, 有助于空氣與燃料的充分混合,同時還有調節二次風量的作用。
2、點火系統
點火系統的功能在于點燃空氣與燃料的混合物,其主要部件有:點火變壓器、點火電極、電火高壓電纜。
點火變壓器:是一種產生高壓輸出的轉換元件,其輸出電壓一般為:2× 5KV、 2× 6KV、 2× 7KV,輸出電流一般為 15~30mA。
點火電極:將高壓電能通過電弧放電的形式轉換成光能和熱能, 以引燃燃料。一般有單體式和分體式兩種。
電火高壓電纜:其作用是傳送電能。
3、監測系統
監測系統的功能在于保證燃燒器安全的運行, 其主要部件有火焰監測器、壓力監測器、監測溫度器等。
火焰監測器:其主要作用是監視火焰的形成狀況, 并產生信號報告程控器?;鹧鏅z測器主要有三種:光敏電阻、紫外線 UV 電眼和電離電極。
A、光敏電阻:多用于輕油、重油燃燒器上,其功能和工作原理為:
光敏電阻和一個有三個觸點的火焰繼電器相連,光敏電阻的阻值隨器接收到的光的多少而變化,接收到的光越多,阻值就越低,當加在光敏電阻兩端的電壓一定時,電路中的電流就越高,當電流達到一定值時,火焰繼電器被激活,從而使燃燒器繼續向下工作。 當光敏電阻沒有感受到足夠的光線時,火焰繼電器不工作,燃燒器將停止工作。光敏電阻不適用于氣體燃燒器,因為氣體燃燒時火焰不夠亮。

B、電離電極:多用于燃氣燃燒器上。 程控器給點火變壓器輸入220V電壓,兩根輸出高壓線之一接地,另一根接到點火電極上,電極與大地之間放電產生電火花,點燃燃氣和空氣混合物,程控器給電離電極供電,如果沒有火焰,電極上的供電將停止,如果有火焰,燃氣被其自身的高溫電離,離子電流在電極、火焰和燃燒頭之間流動,離子電流被整流成直流,并通過接地的燃燒器外殼到達火焰繼電器使之工作,以保證燃燒器后序工作順利進行。如果電離電極發生接地現象,那么產生的電流是交流而非直流的,火焰繼電器將不工作,程控器鎖定。此外,電離電流和點火電流通過同樣的接地電路,因點火電流比電離電流強得多,如果兩種電流流向相反,電離電流將被點火電流阻擋,造成火焰形成后,燃燒器卻斷路了,這種缺陷可以通過點火變壓器反向輸入來補償,因為反接電線后,造成點火
變壓器的交流電方向旋轉 180°,產生的點火電流方向也旋轉 180°,結
果兩種電流方向一致,這樣上述缺陷也即克服。另外,電離區火焰不穩定
也會引起火焰還存在時燃燒器斷路,可能是因為空氣燃氣比不合適,可以
通過調節空氣量或燃氣量來解決,也可能是燃燒頭上空氣燃氣分布不均
勻,可以通過調節燃燒頭的位置來解決。
C、紫外線 UV 電眼:一般用于油氣兩用燃燒器上,該電眼只能感受到火焰中的紫外線(光譜范圍190~270納米),UV管不會對爐膛內閃爍的耐火材料日光、普通光線或爐內輝光物質作出反應, UV管的壽命在不超過50℃的環境溫度下約為10000小時,環境溫度過高對其壽命有很大影響。如果它接受到足夠量的紫外線,它就能產生電流,并經過適當放大,機或火焰繼電器,使它閉合。如果的UV管電量耗盡了,即使不存在紫外線,它仍會表現出接收到了紫外線,為了克服這一缺陷,每次開啟之前,程控器都會在其兩端加上一個適當的電壓,這樣即使電量耗盡了,它的信號就只會表示沒有火焰,這樣程控器也就隨即停止工作。為檢測UV電眼的效果,點火之后把它從原位上抽出至少一分鐘,UV電眼被抽出后,就檢測不到火焰發出的紫外線,相關的繼電器斷開,燃燒器停止工作。即使很少的一點油污都會擋住紫外線進入光電管的通道而導致內部的感應元件接收不到足夠量的紫外線而無法工作。 因此光電管必須徹底清洗干凈。 UV管感受不到太陽光或普通燈具的光線,可以用火焰或普通點火變壓器兩電極間的點火花來檢測它的靈敏度。為確保燃燒器正常工作,它的電流必須穩定,不能低于程控器所需的電流。該電流可用微安計來檢測,其值不能低于壓力監測器:一般用于氣體燃燒器,主要有燃氣高壓、低壓監測,以及風壓監測,若燃燒器用于蒸汽鍋爐,還有蒸汽壓力監測。
溫度監測器:主要有煙氣溫度的監測與控制,燃油(重油)溫度的監測與控制,以及系統水和媒質水溫度的監測與控制。
4、燃料系統
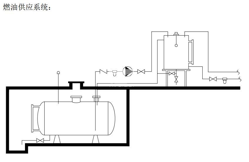
燃料系統的功能在于保證燃燒器燃燒所需的燃料。燃油燃燒器的燃料系統主要有:油管及接頭、油泵、電磁閥、噴嘴、重油預熱器。燃氣燃燒器主要有過濾器、調壓器、電磁閥組、點火電磁閥組。
油管及接頭:用于傳輸燃油。
油泵:產生壓力油的機構,輸出油壓一般在10bar以上,以滿足霧化和噴油量的要求,分為單管輸出和雙管輸出兩種。有些燃燒器油泵與風機馬達同軸連接,有些有單獨的油泵電機驅動。常見油泵有J型、E型和TA型,適用于單管和雙管油系統,油泵內有過濾器、壓力調節閥和截止閥。過濾器主要是保護傳動機構,E型泵過濾器的網目較大,當過濾器堵塞時,會導致真空過度,過濾器要定期清洗,清洗或更換過濾器后,必須確保泵蓋緊密密封。 油泵在運行前, 必須在吸從側油管灌注油料到泵溢流, 否則,泵會由于干運轉而損壞。油泵吸入口的抽吸阻力不能超過 0.4bar,輸出口的壓力一般在 10~24bar。J型泵的比較大供油壓力為20bar,E型和TA型泵的比較大供油壓力為40bar,比較大供油溫度為90℃。
電磁閥:用于控制油路的通斷,多為二通閥和三通閥。
噴嘴:主要作用是霧化油滴。油嘴的主要參數有噴射角(30°、45°、60°、80°)、噴射方式(實心、空心、半空心)和噴油量。同等壓力下,較小噴油量的噴嘴,霧化效果較好。常用的油嘴有簡單機械霧化噴嘴和回油式機械霧化噴嘴,前者結構簡單,系統簡單,也比較可靠,一般用于較小負荷的燃燒器,后者結構和系統都要復雜些,但調節特性好,適用于鍋爐負荷經常有較大范圍調節時用。簡單機械霧化噴嘴有切向槽式和切向孔式,前者霧化角較大且霧化顆粒較小。
重油預熱器: 重油燃燒器的特有設備, 用于加熱重油至一定溫度, 減小粘度,以增加重油霧化效果,其溫度控制裝置與燃燒器控制電路聯鎖。


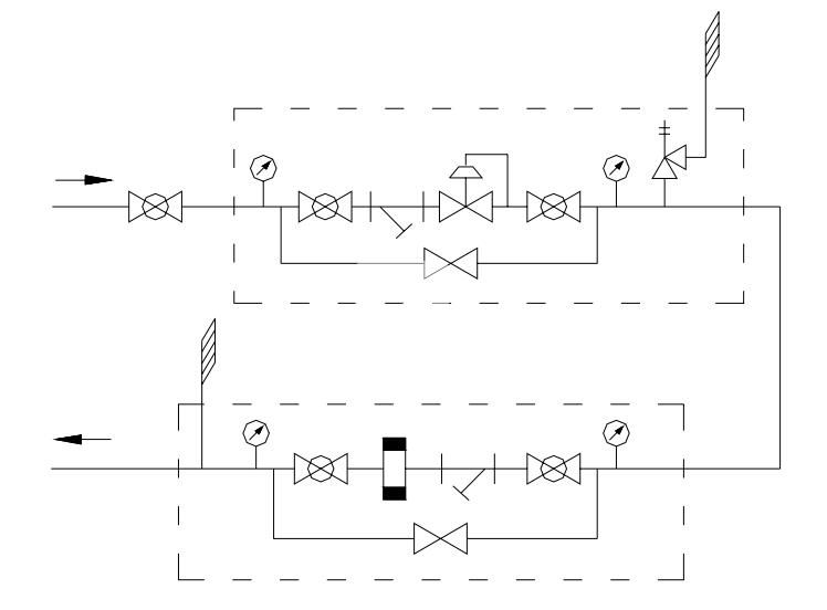
過濾器:其作用是防止雜質進入電磁閥組和燃燒器內。
調壓器:主要作用是降壓穩壓, 一般用于高壓供氣系統中,其入口壓力不能低于100mbar。
電磁閥組:一般由安全電磁閥和主電磁閥組成,有分體式和一體式,一體式電磁閥組內一般還組合有穩壓閥和過濾網。 安全電磁閥一般為快開快閉式。主電磁閥一般為二級式,并有快開快閉式和慢開快閉式之分。
電磁閥泄漏檢測器:其作用是檢測電磁閥組的關閉是否嚴密。一般用在功率大于 1400kw 的燃燒器上。
點火電磁閥組:一般有手動球閥、 穩壓器、 電磁閥組成。主要用于功率較大的燃燒器。


燃氣供應系統:

5、電控系統
電控系統是以上各系統的指揮中心和聯絡中心,主要控制元件為程控器,針對不同的燃燒器配有不同的程控器,常見的程控器有:LFL系列、LAL系列、LOA系列、LGB系列,其主要區別為各個程序步驟的時間不同。
燃燒器工作過程介紹
以比例式燃氣燃燒器為例,其工作過程有四個階段:準備階段、預吹掃階段、點火階段和正常燃燒階段。
準備階段:程控器得電后,開始內部程序自檢,同時,伺服馬達驅動風門到關閉狀態,程序自檢完畢后,處于待機狀態,當恒溫器、過高過低燃氣壓力開關、蒸汽鍋爐蒸汽壓力開關等限制開關允許時,程控器開始啟動,進入預吹掃階段。如果電磁閥組帶有泄漏檢測系統,該系統在上述限制開關允許時先進行閥門泄漏檢測,檢測通過后,才進入預吹掃階段。
預吹掃階段:伺服馬達驅動風門到大火開度狀態,同時風機馬達啟動,以吹入空氣進行預吹掃,根據程控器的不同,約吹掃20~40秒后,伺服馬達驅動風門到點火開度狀態,準備點火。整個預吹掃階段,空氣壓力開關測量空氣壓力,只有空氣壓力保持在一個足夠高的水平上,預吹掃過程才能持續進行。
點火階段:伺服馬達驅動風門到點火開度狀態后,點火變壓器切入,并輸出高電壓給點火電極,以產生點火電火花,約3秒后,程控器送電給安全電磁閥和比例式電磁閥,閥打開后,燃氣到達燃燒頭,與風機提供的空氣混合,然后被點燃。在閥打開后2秒內,電離電極應檢測到火焰的存在,只有這樣,程控器才繼續后面的程序,否則,程控器鎖定并斷開電磁閥停止供氣,同時報警。
正常燃燒階段:點火正常并穩定燃燒幾秒后,伺服馬達驅動風門到大火開度狀態,同時,比例式燃氣調節閥菜的伺服電機切入,并根據空氣壓力和爐膛背壓來調節燃氣閥后的燃氣壓力以調節燃氣量,達到穩定、高效燃燒的目的。此后,燃燒器根據各個限制開關的要求自動實現大小火轉換和停機。此外,整個燃燒過程中,電離電極和空氣壓力開關對燃燒器實行監控。
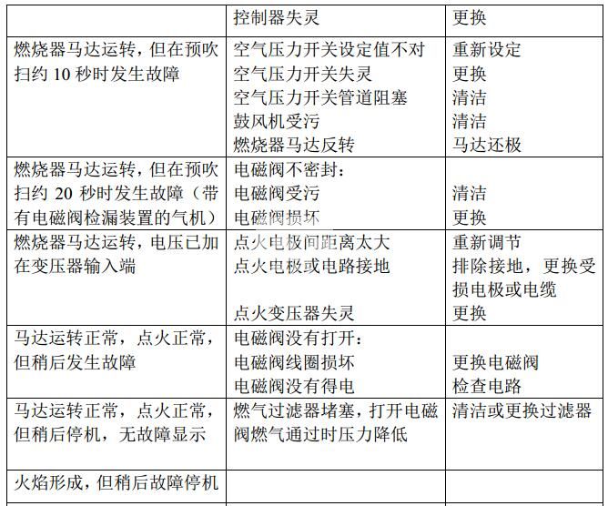
常見故障現象、原因及處理方法
在發生故障時,必須高先檢查燃燒器正常運轉的條件是否滿足:
1、供電是否正常?
2、燃料供應系統是否正常?如供氣管道上的燃氣壓力是否正常以及球閥是否打開(氣機)?油箱里是否有油以及供油回油管道上的閥門是否打開(油機)?
3、所有的調節器和控制器的調節和聯鎖控制是否正常?如溫度調節器、水流量開關、水位開關、油位開關、燃氣壓力開關等。
4、燃燒時的空氣量及燃氣量或燃油量是否被改變?
如果確定故障不是由上述原因造成的,則必須對燃燒器的有關功能進行檢查測試。一般方法就是去掉某些聯鎖控制,接通燃燒器,然后準確地觀察以下工作過程,根據現象,就能很快地發現問題所在并排除。










